11311 Staffordsburg Road

Independence, KY 41051

LISTED FOR SALE

$425,000

Bedrooms

4

Bathrooms

2

Square Ft.

unk

Year Built

unk

Lot Size

1.46

About The Property

11311 Staffordsburg Road, Independence, KY 41051 – Charming Farmhouse on 1.5 Acres Near Independence KY with Detached Garage & Multi-Family Potential

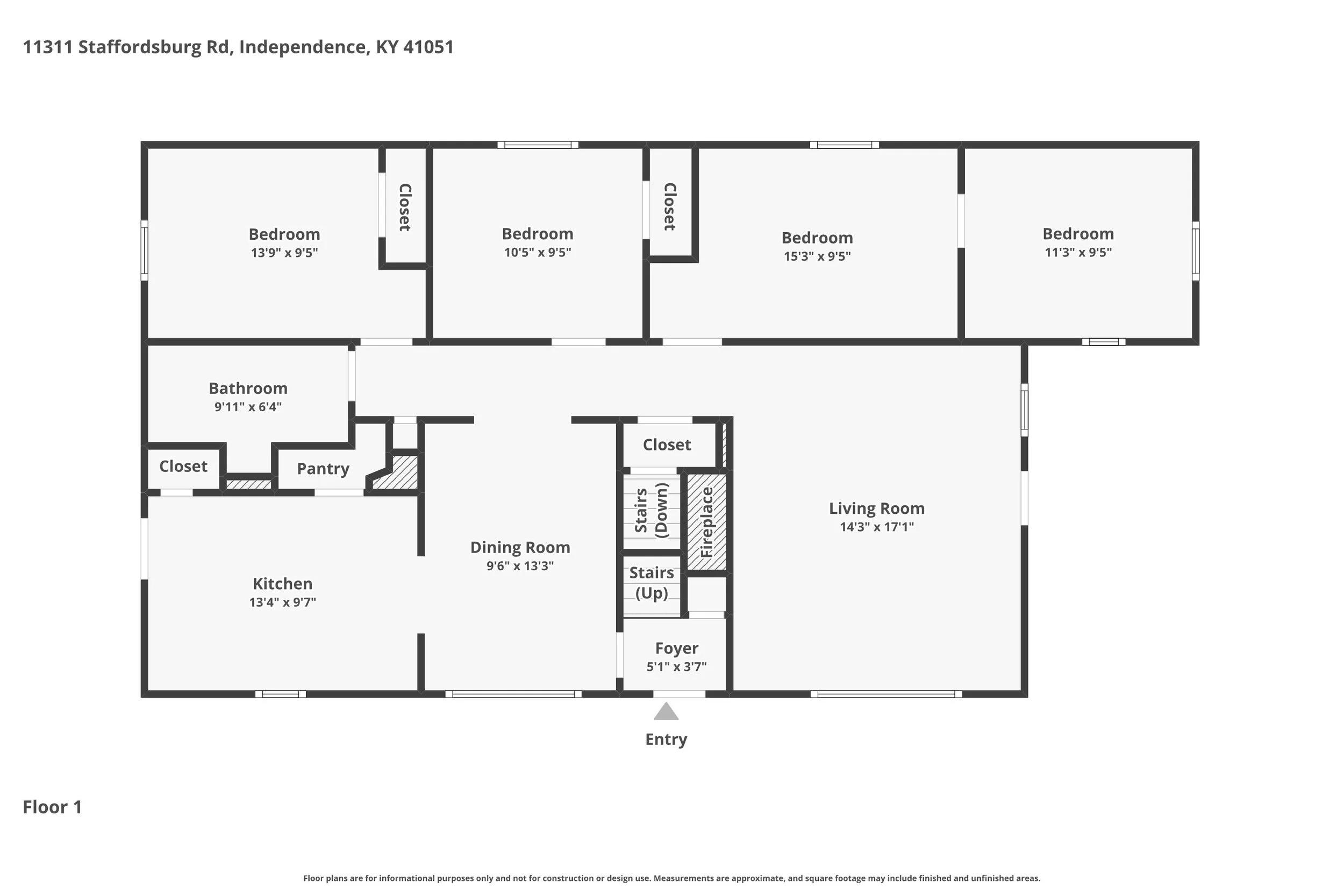
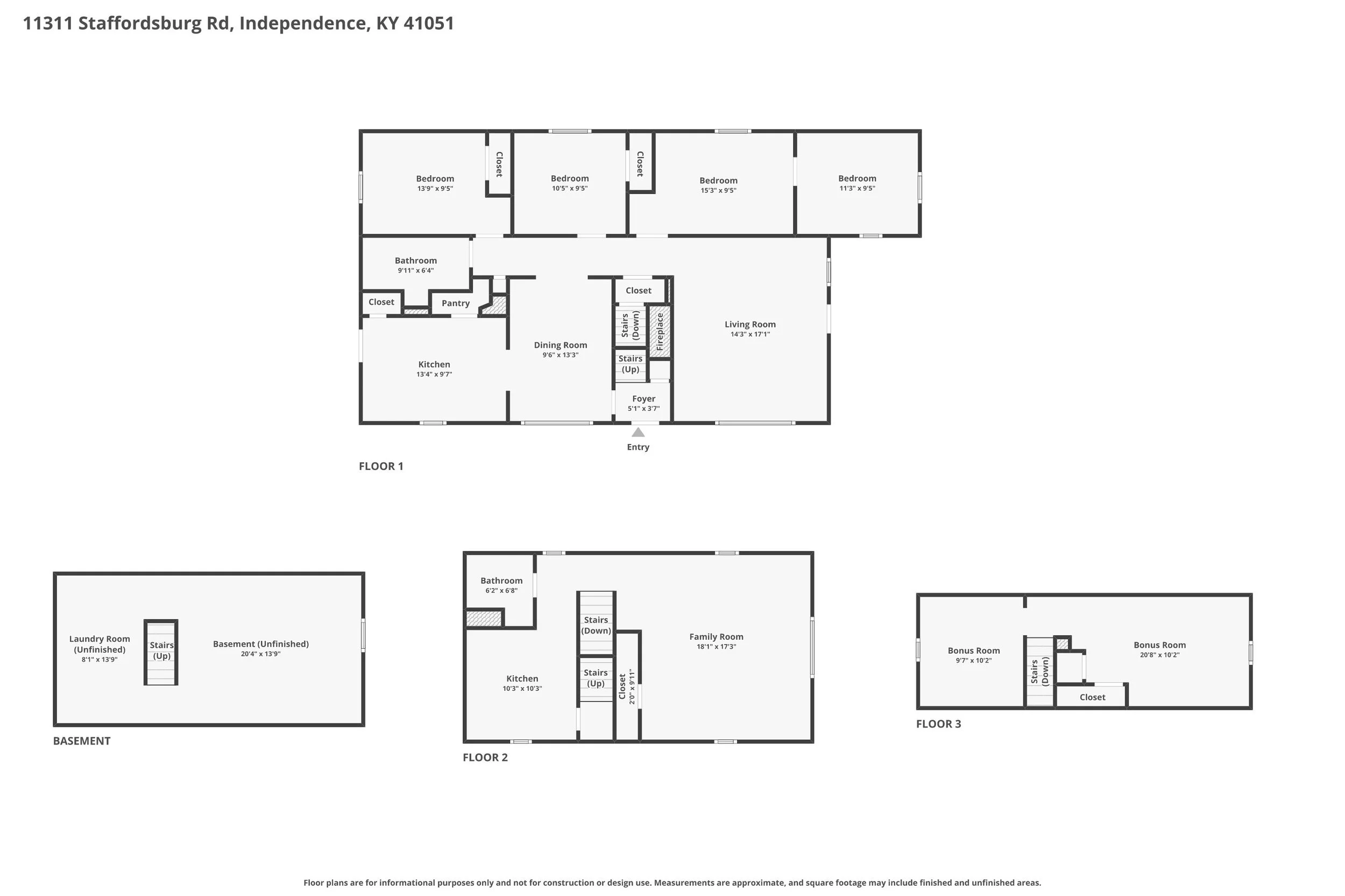
Discover this picturesque farmhouse set on nearly 1.5 acres, offering the perfect blend of country charm and modern upgrades just 2.4 miles from Independence dining and shops. The home features newer siding, roof, and a custom patio, adding both style and peace of mind. Inside, the remodeled kitchen with granite countertops and a walk-in pantry flows effortlessly into the formal dining room with a large picture window and laminate flooring, creating a bright and welcoming space for gatherings. The main-level primary bedroom with an expansive walk-in closet and a remodeled full bath provide convenient one-level living, while the cozy living room with built-ins and newer carpet adds warmth and character.

Upstairs, the home offers flexible living with a second-floor family room, second kitchen, and full bath, making it ideal for multi-family living, guests, or extended stays. The third floor includes a private study and a fourth bedroom or versatile all-purpose room, giving you even more space to work or relax. Outside, the property shines with exceptional curb appeal, professional landscaping, a welcoming side porch, and peaceful water views. A bonus oversized detached garage with loft space provides incredible potential for additional living space, a workshop, or hobby area. Conveniently located a short drive from White’s Tower Elementary, the local sports complex, and grocery stores, this home offers space, flexibility, and location all in one rare opportunity.

LISTED BY

Kayla Andrews

REALTOR®⁣, LICENSED IN KENTUCKY & OHIO

Schedule a tour

Floor Plans

Click a floor plan below to view full size.